English
Verkocht:Renbaanstraat 129, 2586 GA Den Haag - Foto
Verkocht

Renbaanstraat 129 2586 GA Den Haag

  • Appartement
  • 4 kamers
  • 3 slaapkamers
  • 1 badkamers
  • Bouwjaar 1904
  • 145 m² gebruiksoppervlakte

Kaart

Kenmerken

Overdracht

Referentienummer
15
Vraagprijs
Vraagprijs
Status
Verkocht
Aanvaarding
In overleg
Aangeboden sinds
Woensdag 6 maart 2024

Bouw

Type object
Appartement, bovenwoning, dubbelbovenhuis
Woonlaag
2e woonlaag
Soort bouw
Bestaande bouw
Bouwperiode
1904

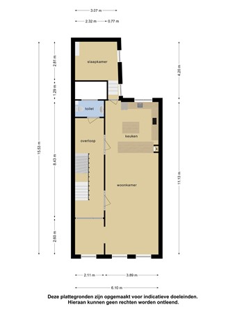
Oppervlaktes en inhoud

Woonoppervlakte
145 m²
Inhoud
450 m³

Indeling

Aantal bouwlagen
2
Aantal kamers
4 (waarvan 3 slaapkamers)
Aantal badkamers
1 (en 2 aparte toiletten)

Media

Foto's

Plattegronden